Le Chant du Mélé
Valberg - Le Chant du Mélé
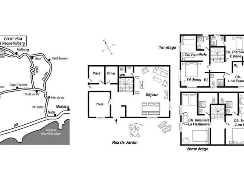
In a larchwood chalet, five cosy nests await you for one night or longer stay, birds of passage. Table d'hôte dinners made from local produce, for rediscovering forgotten flavours. Nature lovers Patricia & Patrick will do their best to offer you an unforgettable stay.5 Bdrms in mountain chalet. Garden level, big lounge, sitting rm, fireplace, dining rm (36 m²). Upper level: 1 family rm (1 dbl bed, 1 sgl bed). 1 bdrm (1 dbl bed), 1 bdrm (2 sgl beds). 2nd upper level: 2 family rms (1 dbl bed, 2 sgl beds). Each rm with washrm WC. Wifi. Terrace, grounds, parking. Motorbike garage. Animal/request.
Merkmale
 Fahrradgarage Nicht
 Lunchpaket Nicht
 Aufladen für Elektrofahrräder Nicht
Diese Einrichtung bietet spezielle Dienstleistungen für Radfahrer an.
Contact par mail
* Pflichtfelder
