Gîte Le Dahlia

Accueil Vélo
Lodgings and furnished rentals
accueil-velo Diese Einrichtung ist Accueil Vélo zertifiziert und verpflichtet sich, Radfahrer zu empfangen. Ihre Verpflichtungen ansehen

Beschreibung

Stay at the foot of an Alpine village in the Vésubie valley, Mercantour surrounded by chestnut and larch trees. Set of 8 adjoining communal gîtes located in the Puey district. Ideal for meeting up with several families or friends while maintaining privacy by reserving several gîtes. Gîte Dahlia is adjoining Gîte Cyclamen (4104) and Eglantine (4106). Leisure park nearby, shops and swimming pool (in summer) in the village. The Col de Turini road (12km) and its numerous bends are famous in the automobile world. In fact, every year in January the Monte Carlo Rally organizes one of its specials there. 15km away, many activities await you in summer and winter at the Camp d'Argent station, and particularly around the Authion massif. 12km also to reach the spa resort of Berthemont les Bains.

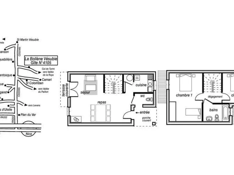
Dahlia duplex gîte. Ground floor : Entrance, covered porch. Living room with kitchen area 23 m2 with 1 sofa bed (140x190), TV with indoor antenna. Independent WC. 1st floor : 1 bedroom 13 m2 with 1 double bed (140x190) & 1 single bed (90x190). 1 Bedroom 9 m2 with 1 double bed (140x190). Bathroom with toilet. Covered terrace. Private enclosed garden (8 m2). Electric heating. Charges included. Tourist tax extra. Car park.
Fahrradgarage: Nicht
Lunchpaket: Nicht
Aufladen für Elektrofahrräder: Nicht
Interessiert Sie diese Einrichtung? Besuchen Sie deren Website zum Buchen oder für mehr Informationen.

Localisation

Interessiert Sie diese Einrichtung? Besuchen Sie deren Website zum Buchen oder für mehr Informationen.

Weitere Accueil Vélo in der Nähe

Gîte Géranium

Lodgings and furnished rentals
Accueil Vélo
La Bollène-Vésubie

Gîte Cyclamen

Lodgings and furnished rentals
Accueil Vélo
La Bollène-Vésubie

Gîte Aubépine

Lodgings and furnished rentals
Accueil Vélo
La Bollène-Vésubie

Gîte Le Dahlia

Lodgings and furnished rentals
Accueil Vélo
La Bollène-Vésubie

Gîte Freesia

Lodgings and furnished rentals
Accueil Vélo
La Bollène-Vésubie

Bégonia - F3

Lodgings and furnished rentals
Accueil Vélo
La Bollène-Vésubie
Haben Sie eine Information zu dieser Einrichtung für uns?
Ein Problem melden